︎
 





Index
Kontakt

Bauten
Wettbewerbe/
Studien
Information
Blog

Baumann Lukas
Architektur



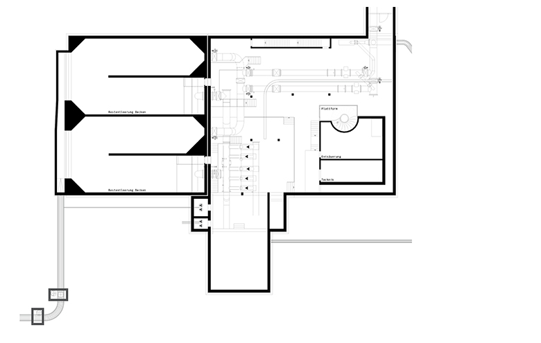
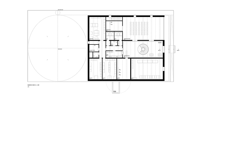
Pumpwerk
Basel/B
S
2015
︎